Электрическая схема 2006 Evanda 19. ПОДУШКА БЕЗОПАСНОСТИ (МОДУЛЬ ДАТЧИКОВ И ДИАГНОСТИКИ)К началу документа
Evanda
На предыдущую страницуНа следующую страницу
Главная страница GMDEЗагрузить нединамическое оглавлениеЗагрузить динамическое оглавлениеПомощь



19. ПОДУШКА БЕЗОПАСНОСТИ (МОДУЛЬ ДАТЧИКОВ И ДИАГНОСТИКИ)

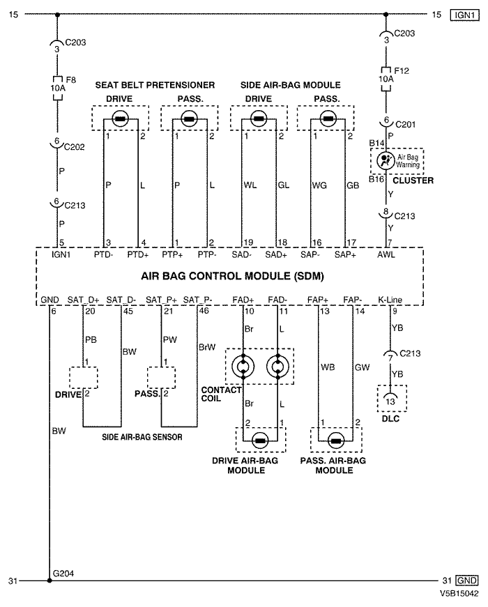
1) ЦЕПЬ ПРЕДНАТЯЖИТЕЛЕЙ РЕМНЕЙ БЕЗОПАСНОСТИ, БЛОКА ПОДУШКИ БЕЗОПАСНОСТИ И КОЛОДКИ ДИАГНОСТИКИ

V5B15042.png
Показать иллюстрациюПеревод текста в иллюстрациях


а. ИНФОРМАЦИЯ О РАЗЪЁМЕ

№ РАЗЪЁМА
(№ И ЦВЕТ КОНТАКТА)
СОЕДИНИТЕЛЬНЫЙ ЖГУТ ПРОВОДОВПОЛОЖЕНИЕ РАЗЪЁМА
С201 (контакт 22, белый) Блок предохранителей на приборной панели - приборная панель БЛОК ПРЕДОХРАНИТЕЛЕЙ НА ПРИБОРНОЙ ПАНЕЛИ
С202 (контакт 12, белый) Блок предохранителей на приборной панели - приборная панель БЛОК ПРЕДОХРАНИТЕЛЕЙ НА ПРИБОРНОЙ ПАНЕЛИ
С203 (контакт 3, серый) Блок предохранителей на приборной панели - приборная панель БЛОК ПРЕДОХРАНИТЕЛЕЙ НА ПРИБОРНОЙ ПАНЕЛИ
С210 (контакт 23, белый) Приборная панель - кузов Нижняя часть пространства для ног водителя
С213 (контакт 8, белый) Подушка безопасности - приборная панель За цифровыми часами
G204 Подушка безопасности Передняя часть кронштейна модуля датчиков и диагностики с правой стороны
G301 Кузов Под панелью пола кузова при поперечине со стороны водителя

б. УСЛОВНОЕ ОБОЗНАЧЕНИЕ & И НАХОЖДЕНИЕ НОМЕРА КОНТАКТА

V5B1P068.png
Показать иллюстрациюПеревод текста в иллюстрациях


в. РАСПОЛОЖЕНИЕ РАЗЪЁМОВ И СОЕДИНЕНИЙ МАССЫ

V3B12003.png
Показать иллюстрациюПеревод текста в иллюстрациях


V3B12020.png
Показать иллюстрациюПеревод текста в иллюстрациях


На предыдущую страницуНа следующую страницу


Главная страница сайта