Электрическая схема 2007 18. ВНУТРЕННЕЕ ОСВЕЩЕНИЕК началу документа
Epica
На предыдущую страницуНа следующую страницу
Главная страница GMDEЗагрузить нединамическое оглавлениеЗагрузить динамическое оглавлениеПомощь



18. ВНУТРЕННЕЕ ОСВЕЩЕНИЕ

1) ЦЕПЬ ОСВЕЩЕНИЯ САЛОНА ПРИ ОТКРЫТИИ ДВЕРИ (ЗАМОЧНАЯ СКВАЖИНА, ПОДНОЖКА ДВЕРИ)

L7B15064.png
Показать иллюстрациюПеревод текста в иллюстрациях


а. ИНФОРМАЦИЯ О РАЗЪЁМЕ

№ РАЗЪЁМА
(№ И ЦВЕТ КОНТАКТА)
СОЕДИНИТЕЛЬНЫЙ ЖГУТ ПРОВОДОВПОЛОЖЕНИЕ РАЗЪЁМА
С203 (контакт 16, желтый) Приборная панель - кузов Коробка разъемов внизу левой передней стойки
С206 (контакт 10, белый) Крыша - кузов Возле середины передней стойки водителя
C206 (контакт 18, белый) Крыша - кузов Возле середины передней стойки водителя
С210 (контакт 10, белый) Приборная панель - корпус замка Возле середины рулевой колонки
С352 (контакт 18, белый) Кузов - дверь водителя Внизу передней стойки водителя
С361 (контакт 18, серый) Кузов - дверь пассажира Внизу передней стойки пассажира
С362 (контакт 18, белый) Кузов - дверь пассажира Внизу передней стойки пассажира
G202 Приборная панель Левая нижняя часть центрального молдинга приборной панели
G301 Кузов На левой поперечине передней панели пола
G302 Кузов На правой поперечине передней панели пола

б. УСЛОВНОЕ ОБОЗНАЧЕНИЕ & И НАХОЖДЕНИЕ НОМЕРА КОНТАКТА

L7B1P063.png
Показать иллюстрациюПеревод текста в иллюстрациях


в. РАСПОЛОЖЕНИЕ РАЗЪЁМОВ И СОЕДИНЕНИЙ МАССЫ

L7B12013.png
Показать иллюстрациюПеревод текста в иллюстрациях


L7B12014.png
Показать иллюстрациюПеревод текста в иллюстрациях


г. КОНТАКТНАЯ КОЛОДКА

S201

L7B1S101.png
Показать иллюстрациюПеревод текста в иллюстрациях


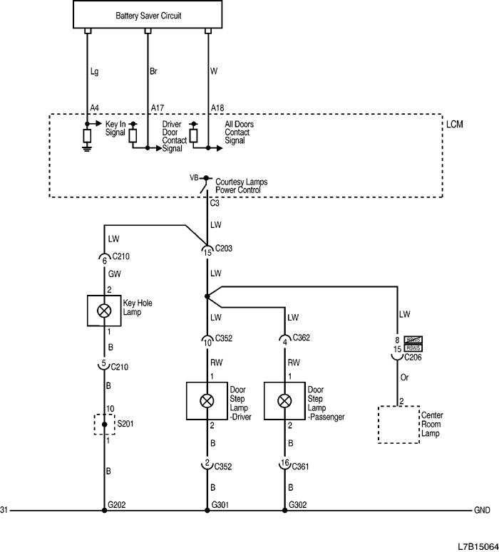
2) ЦЕПЬ ПЛАФОНОВ ОСВЕЩЕНИЯ САЛОНА И ДРУГИХ ЛАМП (СОЛНЦЕЗАЩИТНЫЙ КОЗЫРЕК, ПЕРЧАТОЧНЫЙ ЯЩИК, БАГАЖНЫЙ ОТСЕК)

L7B15338.png
Показать иллюстрациюПеревод текста в иллюстрациях


а. ИНФОРМАЦИЯ О РАЗЪЁМЕ

№ РАЗЪЁМА
(№ И ЦВЕТ КОНТАКТА)
СОЕДИНИТЕЛЬНЫЙ ЖГУТ ПРОВОДОВПОЛОЖЕНИЕ РАЗЪЁМА
С203 (контакт 16, желтый) Приборная панель - кузов Коробка разъемов внизу левой передней стойки
C204 (контакт 22, белый) Приборная панель - кузов Коробка разъемов внизу левой передней стойки
С206 (контакт 10, белый) Крыша - кузов Возле середины передней стойки водителя
C206 (контакт 18, белый) Крыша - кузов Возле середины передней стойки водителя
С402 (контакт 6, белый) Крышка багажника - кузов На левой боковой панели в багажном отсеке
G202 Приборная панель Левая нижняя часть центрального молдинга приборной панели
G303 Кузов Возле задней полки левой задней стойки

б. УСЛОВНОЕ ОБОЗНАЧЕНИЕ & И НАХОЖДЕНИЕ НОМЕРА КОНТАКТА

L7B1P064.png
Показать иллюстрациюПеревод текста в иллюстрациях


в. РАСПОЛОЖЕНИЕ РАЗЪЁМОВ И СОЕДИНЕНИЙ МАССЫ

L7B12002.png
Показать иллюстрациюПеревод текста в иллюстрациях


L7B12017.png
Показать иллюстрациюПеревод текста в иллюстрациях


г. КОНТАКТНАЯ КОЛОДКА

S202

L7B1S002.png
Показать иллюстрациюПеревод текста в иллюстрациях


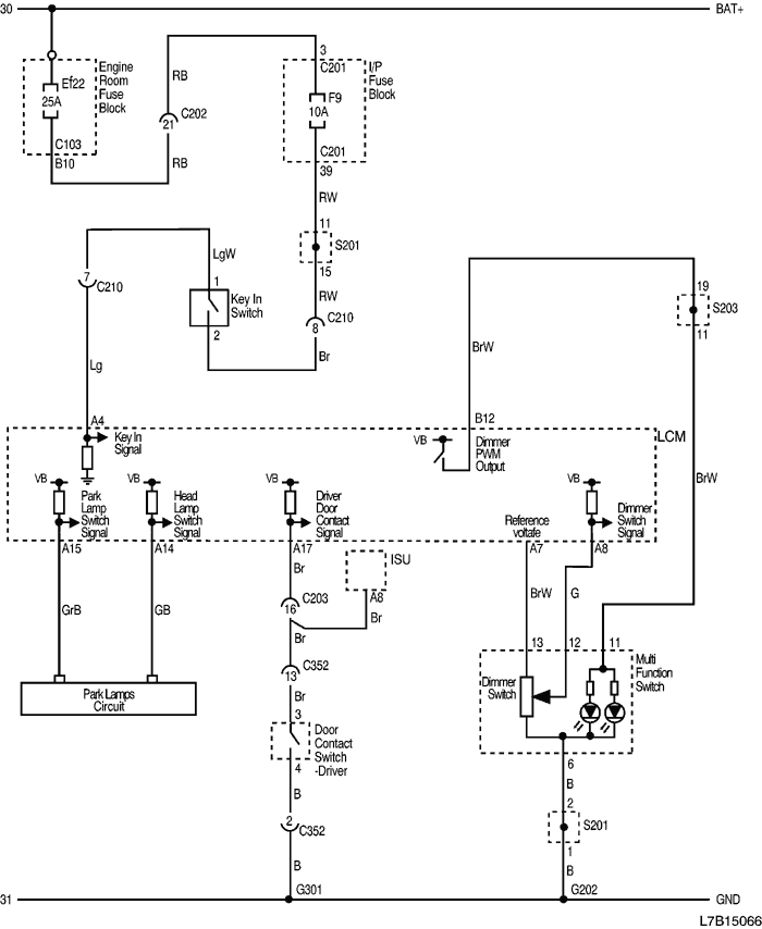
3) ЦЕПЬ ПОДСВЕТКИ САЛОНА

3-1) ЦЕПЬ ПОДСВЕТКИ САЛОНА С РЕГУЛЯТОРОМ ОСВЕЩЕНИЯ

L7B15066.png
Показать иллюстрациюПеревод текста в иллюстрациях


а. ИНФОРМАЦИЯ О РАЗЪЁМЕ

№ РАЗЪЁМА
(№ И ЦВЕТ КОНТАКТА)
СОЕДИНИТЕЛЬНЫЙ ЖГУТ ПРОВОДОВПОЛОЖЕНИЕ РАЗЪЁМА
С103 (контакт 68, белый) Кузов - блок предохранителей в моторном отсеке Блок предохранителей в моторном отсеке
С201 (контакт 76, черный) Приборная панель - блок предохранителей на приборной панели БЛОК ПРЕДОХРАНИТЕЛЕЙ НА ПРИБОРНОЙ ПАНЕЛИ
С202 (контакт 23, белый) Приборная панель - кузов Коробка разъемов внизу левой передней стойки
С203 (контакт 16, желтый) Приборная панель - кузов Коробка разъемов внизу левой передней стойки
С210 (контакт 10, белый) Приборная панель - корпус замка Возле середины рулевой колонки
С352 (контакт 18, белый) Кузов - дверь водителя Внизу передней стойки водителя
G202 Приборная панель Левая нижняя часть центрального молдинга приборной панели
G301 Кузов На левой поперечине передней панели пола

б. УСЛОВНОЕ ОБОЗНАЧЕНИЕ & И НАХОЖДЕНИЕ НОМЕРА КОНТАКТА

L7B1P065.png
Показать иллюстрациюПеревод текста в иллюстрациях


в. РАСПОЛОЖЕНИЕ РАЗЪЁМОВ И СОЕДИНЕНИЙ МАССЫ

L7B12002.png
Показать иллюстрациюПеревод текста в иллюстрациях


г. КОНТАКТНАЯ КОЛОДКА

S201

L7B1S101.png
Показать иллюстрациюПеревод текста в иллюстрациях


S203

L7B1S003.png
Показать иллюстрациюПеревод текста в иллюстрациях


3-2) ЦЕПЬ ЛАМП ПОДСВЕТКИ САЛОНА

L7B15067.png
Показать иллюстрациюПеревод текста в иллюстрациях


а. ИНФОРМАЦИЯ О РАЗЪЁМЕ

№ РАЗЪЁМА
(№ И ЦВЕТ КОНТАКТА)
СОЕДИНИТЕЛЬНЫЙ ЖГУТ ПРОВОДОВПОЛОЖЕНИЕ РАЗЪЁМА
C211 (контакт 15, белый) Приборная панель - A/C За перчаточным ящиком
C211 (контакт 16, белый) Приборная панель - A/C За перчаточным ящиком
C212 (контакт 4, белый) Приборная панель - пепельница За пепельницей
G201 Приборная панель Возле диагностического разъема
G202 Приборная панель Левая нижняя часть центрального молдинга приборной панели
G204 A/C Правая нижняя часть центрального молдинга приборной панели

б. УСЛОВНОЕ ОБОЗНАЧЕНИЕ & И НАХОЖДЕНИЕ НОМЕРА КОНТАКТА

L7B1P066.png
Показать иллюстрациюПеревод текста в иллюстрациях


в. РАСПОЛОЖЕНИЕ РАЗЪЁМОВ И СОЕДИНЕНИЙ МАССЫ

L7B12002.png
Показать иллюстрациюПеревод текста в иллюстрациях


г. КОНТАКТНАЯ КОЛОДКА

S201

L7B1S101.png
Показать иллюстрациюПеревод текста в иллюстрациях


S202

L7B1S002.png
Показать иллюстрациюПеревод текста в иллюстрациях


S203

L7B1S003.png
Показать иллюстрациюПеревод текста в иллюстрациях


На предыдущую страницуНа следующую страницу


Главная страница сайта