Руководство по техническому обслуживанию2006 Evanda СИСТЕМА НАДУВНЫХ ПОДУШЕК БЕЗОПАСНОСТИ (SIR)К началу документа
Evanda
На предыдущую страницуНа следующую страницу
Главная страница GMDEЗагрузить нединамическое оглавлениеЗагрузить динамическое оглавлениеПомощь

РАЗДЕЛ 8B

СИСТЕМА НАДУВНЫХ ПОДУШЕК БЕЗОПАСНОСТИ (SIR)

Внимание! Отсоедините провод от отрицательного вывода аккумулятора, прежде чем снимать или устанавливать какие-либо электрические устройства, а также в ситуации, когда есть возможность касания оголенных электрических контактов каким-либо инструментом или приспособлением. Отсоединение этого провода позволяет избежать травм и повреждения оборудования автомобиля. Если не указано иное, зажигание также должно находиться в положении LOCK

ТЕХНИЧЕСКИЕ ХАРАКТЕРИСТИКИ

Общие технические характеристики

ПРОГРАММА
Описание
Время срабатывания системы подушек безопасности
<20 мс
Время срабатывания датчиков
<5 мс
Рабочая температура
От -40°C до +85°C
Температура хранения
От -40°C до +90°C
Диапазон напряжений
9~16 В
Потребляемый ток
5 мс после установки ключа зажигания в положение ON <1 А
5 мс - 5 с <300 мА, после 5 с <100 мА
Диапазон ускорений
+/- 50g
Максимальное ускорение
+/- 600 g импульсное
Скорость нарастания напряжения
0,2~2,0 В/с
Время сохранения энергии
150 мс после отсоединения аккумуляторной батареи
Энергия воспламенения устройства надувания системы безопасности
4,3 мДж
Сопротивление воспламенителя
2.15 +/- 0.35Ом
Время горения контрольной лампы подушки безопасности (при зажигании в положении ON)
7 с

Моменты затяжки резьбовых соединений

ПРОГРАММА
Н·м
фунт-фут
фунт-дюйм
Винты крепления часовой пружины
3
-
27
Болты крепления модуля подушки безопасности водителя
11
-
97
Болты крепления модуля подушки безопасности пассажира
8
-
71
Болты крепления модуля датчиков и диагностики (SDM)
10
-
89
Время горения контрольной лампы подушки безопасности (при зажигании в положении ON)
10
-
89

СПЕЦИАЛЬНЫЕ ИНСТРУМЕНТЫ

ТАБЛИЦА СПЕЦИАЛЬНЫХ ИНСТРУМЕНТОВ


SCANTOOL
Показать иллюстрациюПеревод текста в иллюстрациях


Диагностический прибор

ПРИНЦИПИАЛЬНЫЕ И МОНТАЖНЫЕ СХЕМЫ

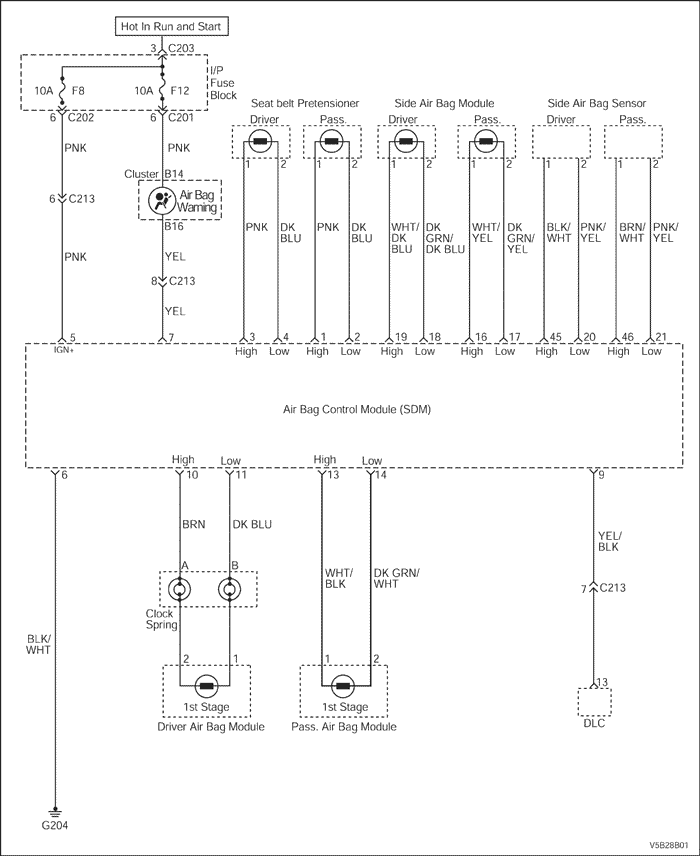
Электрическая схема системы надувных подушек безопасности (SIR)


V5B28B01
Показать иллюстрациюПеревод текста в иллюстрациях


Расположение компонентов системы надувных подушек безопасности (SIR)


V6B18B01
Показать иллюстрациюПеревод текста в иллюстрациях


  1. Модуль подушки безопасности водителя
  2. Часовая пружина
  3. Модуль датчиков и диагностики (SDM)
  4. Модуль подушки безопасности пассажира
  5. Модуль боковой подушки безопасности
  6. Датчик боковой подушки безопасности

ДИАГНОСТИКА

Диагностический код неисправности (DTC)

Когда модуль датчиков и диагностики (SDM) обнаруживает какую-либо неполадку, он включает сигнальный индикатор подушки безопасности и записывает в память диагностические коды неисправности (DTC).
Любой поиск неисправностей в системе надувных подушек безопасности (SIR) необходимо начинать с проверки диагностической системы SIR. Проверка системы диагностики с помощью диагностического прибора позволяет считать диагностические коды неисправности (DTC). Диагностический прибор также проверяет правильность работы контрольной лампы подушки безопасности.
Система записывает два типа диагностических кодов неисправности:
  1. Активные диагностические коды неисправности (DTC) характеризуют неполадки, зарегистрированные в течение текущего цикла работы зажигания. Активные DTC хранятся в ЗУ с произвольным доступом (RAM).
  2. Архивные DTC характеризуют неполадки, зарегистрированные с момента последней очистки архивного ЗУ. Архивные диагностические коды хранятся в электрически стираемом ПЗУ (EPROM).

Таблица диагностических кодов неисправности

Диагностический код неисправности (DTC)
Описание
1
Высокое сопротивление цепи срабатывания подушки безопасности водителя
2
Низкое сопротивление цепи срабатывания подушки безопасности водителя
3
Цепь срабатывания подушки безопасности водителя закорочена на массу
4
Цепь срабатывания подушки безопасности водителя закорочена на напряжение питания
5
Высокое сопротивление цепи срабатывания подушки безопасности пассажира
6
Низкое сопротивление цепи срабатывания подушки безопасности пассажира
7
Цепь срабатывания подушки безопасности пассажира закорочена на массу
8
Цепь срабатывания подушки безопасности пассажира закорочена на напряжение питания
9
Высокое сопротивление цепи срабатывания натяжителя ремня безопасности водителя
10
Низкое сопротивление цепи срабатывания натяжителя ремня безопасности водителя
11
Цепь срабатывания натяжителя ремня безопасности водителя закорочена на массу
12
Цепь срабатывания натяжителя ремня безопасности водителя закорочена на напряжение питания
13
Высокое сопротивление цепи срабатывания натяжителя ремня безопасности пассажира
14
Низкое сопротивление цепи срабатывания натяжителя ремня безопасности пассажира
15
Цепь срабатывания натяжителя ремня безопасности пассажира закорочена на массу
16
Цепь срабатывания натяжителя ремня безопасности пассажира закорочена на напряжение питания
23
Высокое напряжение аккумуляторной батареи
24
Низкое напряжение аккумуляторной батареи
25
Неисправность контрольной лампы подушки безопасности
31
Внутренняя неисправность модуля датчиков и диагностики (SDM)
32
Запись о срабатывании подушки безопасности при лобовом столкновении
33
Запись о срабатывании боковой подушки безопасности водителя при боковом столкновении
34
Запись о срабатывании боковой подушки безопасности пассажира при боковом столкновении
35
Запись о срабатывании натяжителя ремня безопасности
38
Счетчик срабатываний боковых подушек безопасности и натяжителей ремней безопасности свыше 5
52
Высокое сопротивление цепи срабатывания боковой подушки безопасности водителя
53
Низкое сопротивление цепи срабатывания боковой подушки безопасности водителя
54
Цепь срабатывания боковой подушки безопасности водителя закорочена на массу
55
Цепь срабатывания боковой подушки безопасности водителя закорочена на напряжение питания
56
Высокое сопротивление цепи срабатывания боковой подушки безопасности пассажира
57
Низкое сопротивление цепи срабатывания боковой подушки безопасности пассажира
58
Цепь срабатывания боковой подушки безопасности пассажира закорочена на массу
59
Цепь срабатывания подушки безопасности пассажира закорочена на напряжение питания
80
Цепь датчика боковой подушки безопасности водителя закорочена на напряжение питания
81
Цепь датчика боковой подушки безопасности водителя закорочена на массу
82
Ошибка передачи данных датчика боковой подушки безопасности водителя
83
Неисправность датчика боковой подушки безопасности водителя
84
Цепь датчика боковой подушки безопасности пассажира закорочена на напряжение питания
85
Цепь датчика боковой подушки безопасности пассажира закорочена на массу
86
Ошибка передачи данных датчика боковой подушки безопасности пассажира
87
Неисправность датчика боковой подушки безопасности пассажира

Диагностика с помощью диагностического прибора

Диагностический прибор считывает данные по последовательному каналу с вывода 13 разъема линии передачи данных (DLC). C помощью диагностического прибора можно считывать диагностические коды неисправности (DTC) и стирать некоторые DTC после завершения ремонта.
Для использования диагностического прибора установите зажигание в положение OFF, подключите диагностический прибор к разъему линии передачи данных (DLC) и установите зажигание в положение ON.
Следуйте инструкциям руководства к диагностическому прибору. Данные последовательного интерфейса поступают с вывода 9 модуля датчиков и диагностики (SDM) на вывод 13 разъема линии передачи данных (DLC).

Проверка диагностики системы надувных подушек безопасности (SIR)

Примечание: Если в салон автомобиля попало большое количество воды, например, в результате протечек, проезда через глубокую воду, наводнения или других причин, может потребоваться замена модуля датчиков и диагностики (SDM) и разъема SDM. Установив зажигание в положении OFF, осмотрите область вокруг модуля SDM, включая коврик. Если имеется существенное намокание или признаки намокания в прошлом, необходимо удалить воду, устранить вызванные водой повреждения и заменить модуль SDM и разъем SDM. Прежде чем приступать к устранению каких-либо из этих неисправностей, необходимо отключить систему надувных подушек безопасности (SIR). Инструкции по отключению системы надувных подушек безопасности и замене модуля датчиков и диагностики см. в главах "Отключение системы надувных подушек безопасности (SIR)" и "Модуль датчиков и диагностики (SDM)" в этом разделе.

Любой поиск неисправностей в системе надувных подушек безопасности (SIR) необходимо начинать с проверки диагностической системы SIR. Проверка системы диагностики с помощью диагностического прибора позволяет считать диагностические коды неисправности (DTC). В этом разделе описаны процедуры по выявлению состояний SIR, требующих ремонта. Для получения наилучших результатов важно пользоваться диагностическими картами и следовать указанной ниже последовательности действий.
  1. Выполните проверку диагностической системы системы надувных подушек безопасности (SIR), которая позволяет с помощью диагностического прибора получить диагностические коды неисправности (DTC). Одновременно проверяется правильность работы контрольной лампы подушки безопасности.
  2. См. соответствующую диагностическую карту в соответствии с процедурой проверки диагностической системы системы надувных подушек безопасности (SIR). Пропуск этих процедур может привести к увеличению затрат времени на диагностику, неправильному определению неисправностей и ошибочной замене запасных частей.
  3. Повторяйте проверку диагностической системы надувных подушек безопасности (SIR) после любого ремонта или диагностики, чтобы удостовериться, что ремонт проведен правильно и нет других неполадок.

Описание цепи

При первой установке ключа зажигания в положение ON напряжение зажигания с предохранителя подушки безопасности поступает на вход 5 модуля датчиков и диагностики (SDM). Модуль SDM выполняет проверку системы надувных подушек безопасности, семь раз включает и выключает контрольную лампу подушки безопасности и затем выключает ее.

Рекомендации по диагностике

Очень важен порядок исследования диагностических кодов неисправности. Несоблюдение указанного порядка рассмотрения диагностических кодов неисправности может привести к увеличению затрат времени на диагностику, неправильному определению неисправностей и ошибочной замене запасных частей.

Проверка диагностики системы надувных подушек безопасности (SIR)

Внимание! Модуль датчиков и диагностики (SDM) может сохранять достаточное напряжение для приведения в действие подушек безопасности и натяжителей в течение 1 минуты после выключения зажигания и удаления предохранителя. Если подушки безопасности и натяжители не отсоединены, не начинайте обслуживание, пока не пройдет одна минута после отключения питания от SDM. Несоблюдение этого требования может привести к травмам.

Внимание! В процессе обслуживания обращайтесь с модулем датчиков и диагностики (SDM) очень осторожно. Не ударяйте и не встряхивайте SDM. Никогда не подключайте питание к системе надувных подушек безопасности (SIR), если SDM не соединен жестко с автомобилем. Чтобы система надувных подушек безопасности (SIR) работала правильно, все болты крепления модуля датчиков и диагностики SDM должны быть тщательно затянуты, а стрелка на SDM должна быть направлена к передней части автомобиля. При недостаточно жестком креплении модуля SDM к автомобилю включенный модуль может сработать, что приведет к неожиданному выпуску подушек безопасности и может повлечь травму.

ШагОперацияЗначенияДаНет
1
  1. Поверните ключ зажигания в положение ON.
  2. При включении зажигания следите за контрольной лампой подушек безопасности. Мигнула ли лампа семь раз?
-
Система в норме
Перейдите на Шаг 2
2
  1. Поверните ключ зажигания в положение LOCK и выньте его.
  2. Подключите диагностический прибор к разъему линии передачи данных (DLC). Следуйте инструкциям руководства к диагностическому прибору.
  3. Показывает ли диагностический прибор какие-либо диагностические коды неисправностей (DTC)?
-
Перейдите на
Процедура проверки диагностического кода неисправности (DTC)
Перейдите на Шаг 3
3
Проверьте предохранитель F8 во внутреннем блоке плавких предохранителей.
Предохранитель F8 перегорел?
-
Перейдите на Шаг 4
Перейдите на Шаг 5
4
Замените предохранитель F8.
-
-
-
5
  1. Отключите разъем C213.
  2. Проверьте, нет ли замыкания проводки между предохранителем F8 и выводом 6 разъема C213.
  3. Есть замыкание проводки? Если есть, исправьте проводку.
-
-
Перейдите на Шаг 6
6
  1. Отсоединить разъем от модуля SDM.
  2. Отсоединить разъем от модуля SDM.
  3. Проверить, нет ли замыкания проводки между выводом 5 разъема модуля SDM и выводом 6 разъема C213.
  4. Проверить, нет ли замыкания проводки между выводом 5 разъема модуля SDM и выводом 6 разъема C213.
  5. Есть замыкание проводки? Если есть, замените проводку надувной подушки безопасности.
  6. Есть замыкание проводки? Если есть, замените проводку надувной подушки безопасности.
-
-
Перейдите на Шаг 7
7
  1. Проверьте, нет ли замыкания проводки между выводом 13 разъема линии передачи данных (DLC) и массой G204.
  2. Есть замыкание проводки? Если есть, исправьте проводку.
-
-
Перейдите на Шаг 8
8
  1. Удостоверьтесь, что зажигание находится в положении ON.
  2. Проверить питание диагностического прибора.
Поступает ли нужное напряжение на диагностический прибор?
11 - 14 В
Перейдите на Шаг 10
Перейдите на Шаг 9
9
Исправить питание диагностического прибора.
-
-
-
10
  1. Проверьте, нет ли замыкания проводки или разрыва цепи между выводом 7 разъема C213 и выводом 13 разъема линии передачи данных (DLC).
  2. Проверьте, нет ли замыкания проводки или разрыва цепи между выводом 7 разъема C213 и выводом 13 разъема линии передачи данных (DLC).
  3. Проводка разорвана или закорочена?
  4. Проводка разорвана или закорочена?
-
Перейдите на Шаг 11
Перейдите на Шаг 12
11
Отремонтируйте проводку.
-
-
-
12
  1. Проверьте, нет ли замыкания проводки или разрыва цепи между выводом 7 разъема C213 и выводом 9 разъема проводки модуля датчиков и диагностики (SDM).
  2. Проводка разорвана или закорочена?
-
Замените проводку надувной подушки безопасности.
Замените модуль датчиков и диагностики.

Проверка целостности модуля датчиков и диагностики (SDM)

Используйте следующую диагностическую карту, если в результате прохождения соответствующей диагностической карты диагностических кодов неисправности установлено, что все цепи вне модуля датчиков и диагностики (SDM) исправны. Данная карта позволяет определить необходимость замены модуля SDM.

Описание схемы

Когда модуль датчиков и диагностики (SDM) обнаруживает напряжение зажигания свыше 9 В на выводе 5 модуля SDM, контрольная лампа надувных подушек безопасности мигает семь раз, подтверждая нормальную работу. При этом SDM производит начальные проверки, затем измеряет сопротивления и переходит к постоянному мониторингу.
При обнаружении неисправности модуль датчиков и диагностики (SDM) записывает соответствующий диагностический код неисправности (DTC) и включает контрольную лампу надувных подушек безопасности.
Если неисправность больше не наблюдается и/или зажигание выключается и включается вновь, модуль SDM стирает текущие диагностические коды неисправности (DTC) и переписывает их в архивный файл, за исключением кодов 32, 33, 34, 35, 38. Диагностический прибор не удаляет диагностические коды неисправности, поскольку эти коды требуют замены модуля SDM. Замена модуля SDM производится только после устранения неисправности, которая привела к возникновению данного диагностического кода неисправности (DTC).

Проверка целостности модуля датчиков и диагностики (SDM)

Внимание! Модуль датчиков и диагностики (SDM) может сохранять достаточное напряжение для приведения в действие подушек безопасности и натяжителей в течение 1 минуты после выключения зажигания и удаления предохранителя. Если подушки безопасности и натяжители не отсоединены, не начинайте обслуживание, пока не пройдет одна минута после отключения питания от SDM. Несоблюдение этого требования может привести к травмам.

Внимание! В процессе обслуживания обращайтесь с модулем датчиков и диагностики (SDM) очень осторожно. Не ударяйте и не встряхивайте SDM. Никогда не подключайте питание к системе надувных подушек безопасности (SIR), если SDM не соединен жестко с автомобилем. Чтобы система надувных подушек безопасности (SIR) работала правильно, все болты крепления модуля датчиков и диагностики SDM должны быть тщательно затянуты, а стрелка на SDM должна быть направлена к передней части автомобиля. При недостаточно жестком креплении модуля SDM к автомобилю включенный модуль может сработать, что приведет к неожиданному выпуску подушек безопасности и может повлечь травму.

ШагОперацияЗначенияДаНет
1
  1. Поверните ключ зажигания в положение LOCK и выньте его.
  2. Подключите все компоненты системы надувных подушек безопасности и удостоверьтесь, что все компоненты смонтированы правильно.
  3. Проследите, чтобы ключ зажигания находился в выключенном положении в течение не менее чем 30 секунд.
  4. При включении зажигания следите за контрольной лампой подушек безопасности. Мигнула ли лампа семь раз?
-
Сотрите диагностические коды неисправности системы надувных подушек безопасности и
Перейдите на Шаг 2
2
  1. Поверните ключ зажигания в положение LOCK и выньте его.
  2. Подключите диагностический прибор к разъему линии передачи данных (DLC). Следуйте инструкциям руководства к диагностическому прибору.
  3. Установите зажигание в положение ON.
  4. Считайте диагностические коды неисправности системы надувных полушек безопасности с помощью диагностического прибора. Выводится ли тот же самый диагностический код неисправности, что и при предыдущей проверке диагностической системы надувных подушек безопасности (SIR)?
-
Перейдите на Шаг 3.
Перейдите к таблице для указанного диагностического кода неисправности (DTC).
3
  1. Сотрите диагностические коды неисправности системы надувных подушек безопасности.
  2. Выключите зажигание не менее чем на 30 секунд.
  3. При включении зажигания следите за контрольной лампой подушек безопасности. Мигнула ли лампа семь раз?
-
Система в норме
Перейдите на Шаг 4
4
  1. Поверните ключ зажигания в положение LOCK и выньте его.
  2. Отключите разъем модуля датчиков и диагностики (SDM).
  3. Замените модуль датчиков и диагностики.
  4. Подключите разъем модуля датчиков и диагностики (SDM) и удостоверьтесь, что все компоненты смонтированы правильно. Ремонт закончен?
-
-

Подключено к питанию при работе и пуске


V5B28B02
Показать иллюстрациюПеревод текста в иллюстрациях




На предыдущую страницуНа следующую страницу
Главная страница сайта