Электрическая схема 2007 Epica 8. ABS (ANTI-LOCK BRAKE SYSTEM) К началу документа
Epica
На предыдущую страницу На следующую страницу
Главная страница GMDE Загрузить нединамическое оглавление Загрузить динамическое оглавление Помощь



8. ABS (ANTI-LOCK BRAKE SYSTEM)

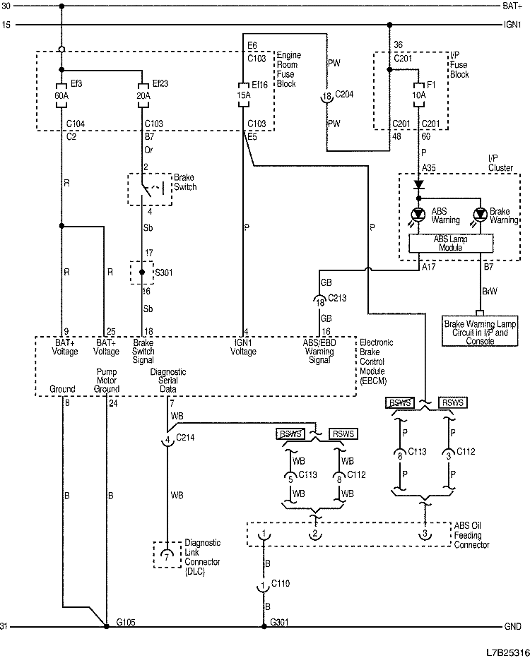
1) POWER, GROUND, WARNING LAMP, SWITCH AND DIAGNOSTIC CIRCUIT

L7B25316.png
Показать иллюстрациюПеревод текста в иллюстрациях


а. ИНФОРМАЦИЯ О РАЗЪЁМЕ

№ РАЗЪЁМА
(№ И ЦВЕТ КОНТАКТА)
СОЕДИНИТЕЛЬНЫЙ ЖГУТ ПРОВОДОВ ПОЛОЖЕНИЕ РАЗЪЁМА
C103 (68 Pin, White) Body - Engine room fuse block Engine room fuse block
C104 (8 Pin, Gray) Body - Engine room fuse block Engine room fuse block
C110 (4 Pin, Gray) Body - Body Sub Beside wiper motor in cowl panel
C112 (8 Pin, Gray) Body - Body Sub Beside wiper motor in cowl panel
C113 (8 Pin, Gray) Body - Body Sub Beside wiper motor in cowl panel
C201 (76 Pin, Black) IP - I/P fuse block I/P fuse block
C204 (22 Pin, White) IP - Body Connector box at the bottom of right A pillar
C213 (23 Pin, White) IP - Body Connector box at the bottom of left A pillarr
C214 (23 Pin, White) IP - Body Connector box at the bottom of left A pillarr
G105 Body Below EBCM
G301 Body On the left crossmember of front floor panel

б. УСЛОВНОЕ ОБОЗНАЧЕНИЕ & И НАХОЖДЕНИЕ НОМЕРА КОНТАКТА

L7B1P029.png
Показать иллюстрациюПеревод текста в иллюстрациях


в. РАСПОЛОЖЕНИЕ РАЗЪЁМОВ И СОЕДИНЕНИЙ МАССЫ

L7B22002.png
Показать иллюстрациюПеревод текста в иллюстрациях


г. КОНТАКТНАЯ КОЛОДКА

S301

L7B2S102.png
Показать иллюстрациюПеревод текста в иллюстрациях


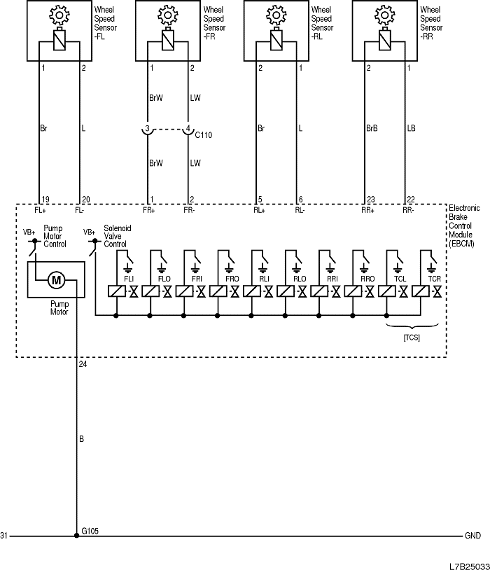
2) WHEEL SPEED SENSOR AND HYDRAULIC MODULATOR VALVE CIRCUIT

L7B25033.png
Показать иллюстрациюПеревод текста в иллюстрациях


а. ИНФОРМАЦИЯ О РАЗЪЁМЕ

№ РАЗЪЁМА
(№ И ЦВЕТ КОНТАКТА)
СОЕДИНИТЕЛЬНЫЙ ЖГУТ ПРОВОДОВ ПОЛОЖЕНИЕ РАЗЪЁМА
C110 (4 Pin, Gray) Body - Body Sub Beside wiper motor in cowl panel
G105 Body Below EBCM

б. УСЛОВНОЕ ОБОЗНАЧЕНИЕ & И НАХОЖДЕНИЕ НОМЕРА КОНТАКТА

L7B1P030.png
Показать иллюстрациюПеревод текста в иллюстрациях


в. РАСПОЛОЖЕНИЕ РАЗЪЁМОВ И СОЕДИНЕНИЙ МАССЫ

L7B22005.png
Показать иллюстрациюПеревод текста в иллюстрациях


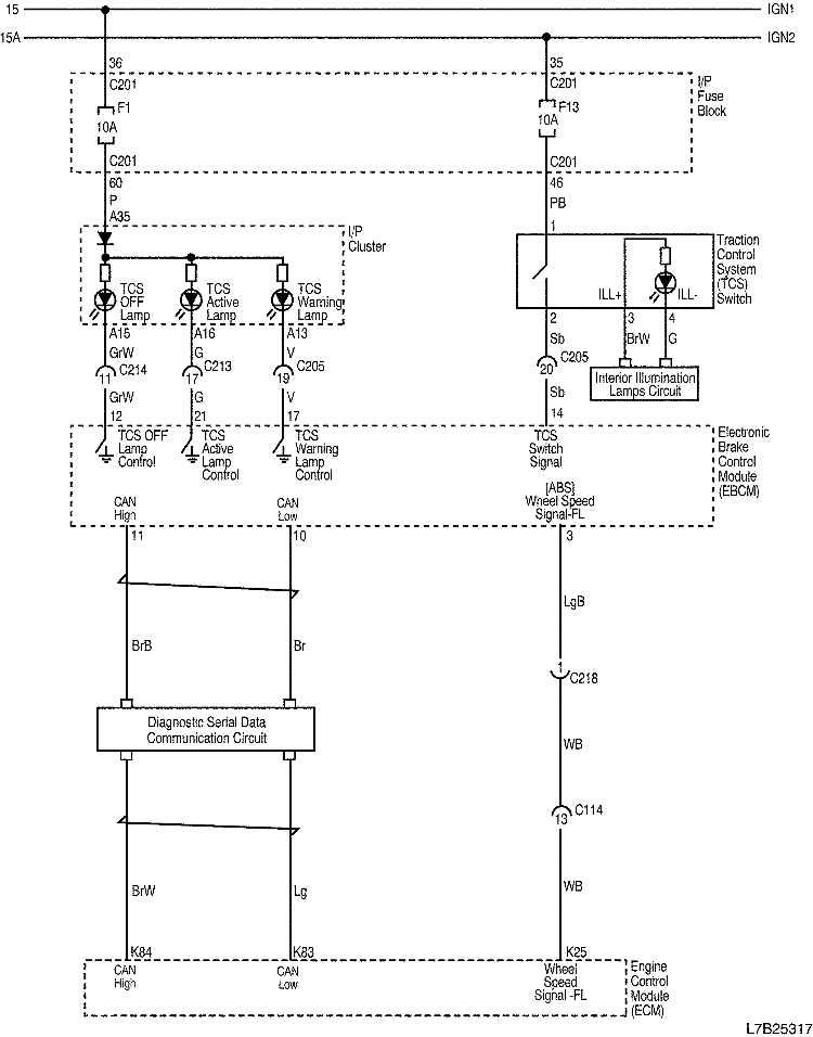
3) TCS SWITCH, WARNING AND INDICATOR LAMP AND DATA COMMUNICATION CIRCUIT

L7B25317.png
Показать иллюстрациюПеревод текста в иллюстрациях


а. ИНФОРМАЦИЯ О РАЗЪЁМЕ

№ РАЗЪЁМА
(№ И ЦВЕТ КОНТАКТА)
СОЕДИНИТЕЛЬНЫЙ ЖГУТ ПРОВОДОВ ПОЛОЖЕНИЕ РАЗЪЁМА
C114 (36 Pin, Black) Engine Extension - Engine Behind engine room fuse block
C201 (76 Pin, Black) IP - I/P fuse block I/P fuse block
C202 (23 Pin, White) IP - Body Connector box at the bottom of right A pillar
C205 (23 Pin, White) IP - Body Connector box at the bottom of left A pillar
C213 (23 Pin, White) IP - Body Connector box at the bottom of left A pillarr
C214 (23 Pin, White) IP - Body Connector box at the bottom of left A pillarr
C216 (20 Pin, White) Engine - IP Near the Connector box at the bottom of left A pillar
C218 (15 Pin, White) Engine - Body Connector box at the bottom of left A pillarr

б. УСЛОВНОЕ ОБОЗНАЧЕНИЕ & И НАХОЖДЕНИЕ НОМЕРА КОНТАКТА

L7B1P317.png
Показать иллюстрациюПеревод текста в иллюстрациях


в. РАСПОЛОЖЕНИЕ РАЗЪЁМОВ И СОЕДИНЕНИЙ МАССЫ

L7B22002.png
Показать иллюстрациюПеревод текста в иллюстрациях


L7B12104.png
Показать иллюстрациюПеревод текста в иллюстрациях


На предыдущую страницу На следующую страницу


Главная страница сайта