Руководство по техническому обслуживанию2007 Epica ОХЛАЖДЕНИЕ ДВИГАТЕЛЯ - 2.0 ДИЗЕЛЬК началу документа
Epica
На предыдущую страницуНа следующую страницу
Главная страница GMDEЗагрузить нединамическое оглавлениеЗагрузить динамическое оглавлениеПомощь

РАЗДЕЛ 1D2

ОХЛАЖДЕНИЕ ДВИГАТЕЛЯ - 2.0 ДИЗЕЛЬ

ТЕХНИЧЕСКИЕ ХАРАКТЕРИСТИКИ

ПРОГРАММА
Описание
Агрегат
Стандартно
Система охлаждения
Вид охлаждения
-
РАБОТАЮЩАЯ ПРИ ПОВЫШЕННОМ ДАВЛЕНИИ
Охлаждающая жидкость
Вместимость охладителя
л (qt)
9 (9,51)
Термостат
Тип
-
Восковой
Температура (приоткрыт)
°С (°F)
80 ± 2 (176 ± 35,6)
Температура (полное открытие)
°С (°F)
95 (203)
Температура (полное закрытие)
°С (°F)
75 (167) или больше
Ход (полное закрытие)
мм (дюймы)
8 (0,315) или больше
Вентилятор системы охлаждения
Тип
-
ВЕНТИЛЯТОР ОСЕВОГО ТИПА
Количество лопаток (осн./вспом.)
ЕА
7 / 9
Диаметр вентилятора системы охлаждения (осн./вспом.)
мм (дюймы)
408 (13.39) / 291 (11.46)
Температура включения на низких оборотах
°С (°F)
91 (195.8)
Температура выключения на низких оборотах
°С (°F)
89 (192.2)
Температура включения на средних оборотах
°С (°F)
94 (201.2)
Температура выключения на средних оборотах
°С (°F)
92 (197.6)
Температура включения на высоких оборотах
°С (°F)
97 (192.2)
Температура выключения на высоких оборотах
°С (°F)
95 (203)
Расширительный бачок
Давление открытия запорного клапана
кПа (фунт/кв. дюйм)
140 (20.3)
Давление открытия вакуумного клапана
кПа (фунт/кв. дюйм)
10 (1.5)
Насос охлаждающей жидкости; Водяной насос
Тип
-
ЦЕНТРОБЕЖНОГО ТИПА
Диаметр крыльчатки
мм (дюймы)
85 (3,35)
Номер лопасти крыльчатки
ЕА
7
Радиатор
Тип
-
С гориз. располож. трубок
Ширина сердцевины
мм (дюймы)
607 (23.90)
Высота сердцевины
мм (дюймы)
414 (16,30)
Глубина сердцевины
мм (дюймы)
27 (1,06)

Моменты затяжки резьбовых соединений

ПРОГРАММА
Н•м
lb-ft
lb-in
Стопорный болт конденсатора кондиционера
9
-
80
Винт основного вентилятора системы охлаждения в сборе
4
-
35
Винт вспомогательного вентилятора системы охлаждения в сборе
4
-
35
Стопорный болт верхнего кронштейна радиатора
14
10,3
-
Стопорный болт и гайка расширительного бачка
5
-
44
Болты корпуса термостата
23
17
-
Стопорный болт масляного радиатора и трубопровода коробки передач с главной передачей в сборе
10
-
88,5
Стопорный болт водяной трубки (M6)
9
-
79,7
Стопорный болт водяной трубки (M8)
20
14.8
-
Стяжной болт водяного насоса
11
-
97,4
Крепежный болт охладителя нагнетаемого воздуха
8,5
-
75,2
Болт крепления топливопровода к общей топливной рампе
10
-
88,5
Гайка звездочки насоса впрыска
70
51,6
-
Болт натяжного ролика приводного ремня ГРМ
52
38,4
-
Болт задней крышки приводного ремня ГРМ
11
-
97,4

РАСПОЛОЖЕНИЕ КОМПОНЕНТОВ

Радиатор и вентилятор


L7C11D10
Показать иллюстрациюПеревод текста в иллюстрациях


  1. Основной вентилятор системы охлаждения
  2. Радиатор
  3. Охладитель нагнетаемого воздуха
  4. Конденсатор
  5. Вспомогательный вентилятор системы охлаждения

Водяной насос и термостат


C7A52D08
Показать иллюстрациюПеревод текста в иллюстрациях


  1. Водяной насос
  2. Прокладка водяного насоса
  3. Корпус термостата
  4. Прокладка термостата
  5. Термостат
  6. Датчик T-MAP
  7. Датчик температуры охлаждающей жидкости

Контур охлаждения


L7C11D09
Показать иллюстрациюПеревод текста в иллюстрациях


  1. Расширительный бачок
  2. Пробка расширительного бачка
  3. Впускной шланг радиатора
  4. CRFM (модуль вентилятора охлаждения радиатора)
  5. Верхний кронштейн радиатора
  6. Нижний кронштейн радиатора
  7. Трубки охлаждения коробки передач с главной передачей в сборе
  8. Выпускной шланг радиатора в сборе
  9. Водяная трубка
  10. Шланг расширительного бачка
  11. Впускной шланг расширительного бачка
  12. Водяная трубка
  13. Выпускной шланг охладителя системы рециркуляции выхлопных газов
  14. Впускной шланг охладителя системы рециркуляции выхлопных газов
  15. Охладитель системы рециркуляции выхлопных газов

ДИАГНОСТИКА

Проверка термостата

  1. Снимите термостат с автомобиля. Следуйте пункту "Термостат" в этом разделе.
  2. Убедитесь, что пружины клапана сжата, когда термостат полностью закрыт. Если пружина не сжата, замените термостат.
  3. Подвесьте термостат и термометр в поддон со смесью 50/50 этиленгликоля и воды. Не позволяйте термостату и термометру находиться у дна поддона, потому что неравномерная концентрация тепла у дна может отразиться на корректности измерения температуры.
  4. Нагрейте поддон горелкой.
  5. Используйте термометр для измерения температуры нагретого раствора.
  6. Термостат должен начинать открываться при температуре 87°С (189°F) и должен быть полностью открыт при 102°С (216°F). Если термостат не открывается при этих температурах, замените термостат.

Перегревы двигателя

Пункты проверки
Операция, действие
Проверьте утечку охлаждающей жидкости.
Добавьте охлаждающую жидкость.
Проверьте концентрацию раствора охлаждающей жидкости.
Раствор охлаждающей жидкости должен состоять из смеси 50/50 этиленгликоля и воды.
Проверьте переднюю сторону радиатора на наличие загрязнений, листвы или насекомых.
Почистите переднюю сторону радиатора.
Проверьте на утечки из шлангов, насоса охлаждающей жидкости, нагревателя, корпуса термостата, радиатора, стержневых пробок или прокладки головки цилиндра.
Замените поврежденные компоненты.
Проверьте исправность термостата.
Замените поврежденный термостат.
Проверьте запаздывание зажигания.
Проведите диагностику кода ЕСМ. Проверьте сохранность приводного ремня газораспределительного механизма.
Проверьте работоспособность электровентилятора системы охлаждения.
Замените электровентилятор системы охлаждения.
Проверьте шланги радиатора на забитость или изношенность.
Замените поврежденные шланги радиатора.
Проверьте исправность насоса охлаждающей жидкости.
Замените неисправный насос охлаждающей жидкости.
Проверьте исправность пробки расширительного бачка.
Замените неисправную пробку расширительного бачка.
Проверьт головку цилиндров или блок цилиндров на повреждения или засоренность.
Отремонтируйте поврежденную головку цилиндров или поврежденный блок цилиндров.

Утечка охлаждающей жидкости

Пункты проверки
Операция, действие
Проверьте радиатор на утечки.
Замените поврежденный радиатор.
Проверьте утечки в следующих местах:
  • Расширительный бачок.
  • Шланг.
Замените следующие детали, если необходимо.
  • Расширительный бачок.
  • Шланг.
Проверьте ослабленные и поврежденные шланги радиатора, шланги нагревателя и разъемы.
Правильно закрепите шланги.
Замените шланги или хомуты шлангов.
Проверьте уплотнение насоса охлаждающей жидкости на утечки.
Замените уплотнение насоса охлаждающей жидкости.
Проверьте прокладку насоса охлаждающей жидкости на утечки.
Замените прокладку насоса охлаждающей жидкости.
Проверьте затяжку головки цилиндров.
Затяните винты головки цилиндров до заданных значений.
Замените прокладку головки цилиндров, если необходимо.
Проверьте утечки в следующих местах:
  • Впускной коллектор.
  • Прокладка головки цилиндров.
  • Заглушка блока цилиндров.
  • Теплообменник нагревателя.
  • Пробка сливного отверстия радиатора
Отремонтируйте или замените компоненты для устранения утечки, если необходимо.

Двигатель не достигает нормальной рабочей температуры или холодный воздух из нагревателя

Пункты проверки
Операция, действие
Проверьте, застревает ли термостат в открытом положении или термостат неправильного типа.
Установите термостат правильного типа и диапазона нагрева.
Проверьте, достигает уровень охлаждающей жидкости отметки MIN на расширительном бачке.
Добавьте охлаждающую жидкость до обозначенной отметки на расширительном бачке.

ТЕХНИЧЕСКОЕ ОБСЛУЖИВАНИЕ И РЕМОНТ

ТЕХНИЧЕСКОЕ ОБСЛУЖИВАНИЕ БЕЗ ДЕМОНТАЖА С АВТОМОБИЛЯ



L7B52D01
Показать иллюстрациюПеревод текста в иллюстрациях


Слив и заправка системы охлаждения

    Внимание! Не снимайте заглушку расширительного бачка на горячем двигателе и радиаторе. Горячая жидкость и пар могут выходить под большим напором.

  1. Подставьте поддон под автомобиль для слива охлаждающей жидкости.
  2. Снимите заглушку расширительного бачка.
  3. Снимите сливную пробку.
  4. Внимание! Использованную охлаждающую жидкость хранить в соответствующей емкости и утилизировать с отработанным маслом. Не сливайте использованную жидкость в канализацию.

  5. Соберите жидкость в сливной поддон.
  6. Удалите весь шлам и загрязнения из расширительного бачка. Следуйте пункту "Расширительный бачок" в этом разделе.
  7. Установите сливную пробку.
  8. Добавьте чистую воду в расширительный бачок.
  9. Медленно заполните бачок так, чтобы верхний шланг емкости находился над уровнем воды. Это позволит воздуху выйти из системы охлаждения.
  10. Запустите двигатель.
  11. Дайте двигателю поработать до открытия термостата. Термостат открыт, когда оба шланга радиатора становятся горячими на ощупь.


  12. L7B52D03
    Показать иллюстрациюПеревод текста в иллюстрациях


  13. Остановите двигатель.
  14. Повторите шаги 1 - 9 до тех пор, пока сливная вода не станет чистой и свободной от охлаждающей жидкости и ржавчины.
  15. Примечание: Не использовать смесь с концентрацией более 60% антифриза на 40% воды. Выше этой концентрации возрастает точка замерзания раствора.

  16. Залить систему охлаждения смесью Dex-cool и воды через расширительный бачок. Смесь должна быть антифризом не менее, чем на 50%, но не более, чем на 60%.
  17. Заправьте охлаждающую жидкость до отметки МАХ на наружной стороне расширительного бачка.


L7B52D01
Показать иллюстрациюПеревод текста в иллюстрациях


Расширительный бачок

Процедура снятия

    Внимание! С целью предупреждения травм не снимайте заглушку расширительного бачка на горячем двигателе и радиаторе, поскольку теплота поддерживает давление в системе. Горячая жидкость и пар могут выходить под давлением и вызвать ожоги.

  1. Слейте охлаждающую жидкость двигателя до уровня расширительного бачка.
  2. Освободите хомут обратного шланга и отсоедините обратный шланг от верха расширительного бачка.
  3. Освободите хомут подающего шланга и отсоедините подающий шланг от низа расширительного бачка.
  4. Снимите крепежные гайки расширительного бачка.


  5. L7B52D04
    Показать иллюстрациюПеревод текста в иллюстрациях


  6. Снимите расширительный бачок с держателя.
  7. Вымойте расширительный бачок внутри и снаружи и заглушку расширительного бачка мылом и водой.
  8. Тщательно промойте расширительный бачок и заглушку.


L7B52D04
Показать иллюстрациюПеревод текста в иллюстрациях


Процедура установки

  1. Установите расширительный бачок на держатель.
  2. Зафиксировать расширительный бачок крепежными гайками.
  3. Затянуть
    Затянуть крепежные гайки расширительного бачка до 5 Н•м (44 фунт-дюйма).



    L7B52D01
    Показать иллюстрациюПеревод текста в иллюстрациях


  4. Присоедините обратный шланг и шланг корпуса дроссельной заслонки к верху расширительного бачка.
  5. Присоедините подающий шланг к низу расширительного бачка.
  6. Закрепите обратный шланг, шланг корпуса дроссельной заслонки и подающий шланг на расширительном бачке шланговыми хомутами.
  7. Заправьте расширительный бачок охлаждающей жидкостью до центральной риски или до отметки МАХ.


L7C11B07
Показать иллюстрациюПеревод текста в иллюстрациях


Основной электровентилятор системы охлаждения

Процедура снятия

  1. Отсоедините отрицательный кабель аккумулятора.
  2. Снять декоративную крышку. См. Раздел 1B, "Механическая система двигателя - 2.0 Дизель".
  3. Снять шланги системы турбонаддува. См. Раздел 1B, "Механическая система двигателя - 2.0 Дизель".


  4. L7C11D01
    Показать иллюстрациюПеревод текста в иллюстрациях


  5. Снять аккумуляторную батарею и полку. См. раздел 1E2, "Электрическая часть двигателя - дизель 2.0".
  6. Снять коробку предохранителей свечей накаливания. См. раздел 1E2, "Электрическая часть двигателя - дизель 2.0".
  7. Отсоединить разъём основного вентилятора системы охлаждения.
  8. Снять основной вентилятор системы охлаждения вверх с радиатора.


L7C11D01
Показать иллюстрациюПеревод текста в иллюстрациях


Процедура установки

    Внимание! Если конструкция вентилятора погнута или повреждена каким-либо образом, не пытайтесь починить или повторно использовать поврежденную деталь. Погнутый или поврежденный вентилятор необходимо заменить новым. Очень важно поддерживать необходимое равновесие вентиляторов в сборе. Вентилятор, не имеющий надлежащий баланс, может сломаться или разлететься на части во время эксплуатации, создавая чрезвычайную опасность. На сломаном или погнутом узле вентиляторе невозможно восстановить надлежащий баланс.

  1. Установить основной вентилятор системы охлаждения на радиатор.
  2. Присоединить разъём основного вентилятора системы охлаждения.
  3. Затянуть
    Затянуть крепежные болты основного вентилятора системы охлаждения с моментом 4 Н•м (35 фунт-дюймов).



L7C11D02
Показать иллюстрациюПеревод текста в иллюстрациях


Вспомогательный вентилятор системы охлаждения

Процедура снятия

    Внимание! С целью предупреждения травм не снимайте радиатор, пока не остыл двигатель и радиатор.

  1. Отсоединить отрицательный провод аккумуляторной батареи.
  2. Снять верхнюю крышку решетки радиатора.
  3. Снять нижнюю крышку решетки радиатора.
  4. Отсоединить разъем вспомогательного вентилятора системы охлаждения.
  5. Снять вспомогательный вентилятор системы охлаждения вниз.


L7C11D02
Показать иллюстрациюПеревод текста в иллюстрациях


Процедура установки

    Внимание! Если конструкция вентилятора погнута или повреждена каким-либо образом, не пытайтесь починить или повторно использовать поврежденную деталь. Погнутый или поврежденный вентилятор необходимо заменить новым. Очень важно поддерживать необходимое равновесие вентиляторов в сборе. Вентилятор, не имеющий надлежащий баланс, может сломаться или разлететься на части во время эксплуатации, создавая чрезвычайную опасность. На сломаном или погнутом узле вентиляторе невозможно восстановить надлежащий баланс.

  1. Установить вспомогательный вентилятор системы охлаждения.
  2. Установить верхнюю и нижнюю крышки крышки решетки радиатора.
  3. Затянуть
    Затянуть стяжные болты вспомогательного вентилятора системы охлаждения с моментом 4 Н•м (35 фунт-дюймов).



C7A11D53
Показать иллюстрациюПеревод текста в иллюстрациях


Радиатор

Процедура снятия

    Внимание! С целью предупреждения травм не снимайте радиатор, пока не остыл двигатель и радиатор.

  1. Снять декоративную крышку. См. Раздел 1B, "Механическая система двигателя - 2.0 Дизель".
  2. Снять аккумуляторную батарею и полку. См. раздел 1E2, "Электрическая часть двигателя - дизель 2.0".
  3. Слейте охлаждающую жидкость двигателя. См. "Слив и заправка системы охлаждения" в этом разделе.


  4. L7C11D04
    Показать иллюстрациюПеревод текста в иллюстрациях


  5. Снять шланги впуска/выпуска охладителя нагнетаемого воздуха. См. Раздел 1B, "Механическая система двигателя - 2.0 Дизель".
  6. Снять коробку предохранителей свечей накаливания. См. раздел 1F2, "Органы управления двигателем - дизель 2.0".
  7. Снять главный вентилятор системы охлаждения. См. "Основной вентилятор системы охлаждения" в этом разделе.


  8. L7C11D03
    Показать иллюстрациюПеревод текста в иллюстрациях


  9. Снять верхний кронштейн радиатора.


  10. L7C11D02
    Показать иллюстрациюПеревод текста в иллюстрациях


  11. Снять шланги масляного радиатора коробки передач с главной передачей в сборе с радиатора, при наличии. См. раздел 5A, "Автоматическая коробка передач в сборе с главной передачей AISIN 55-51LE".
  12. Отсоединить трубки конденсатора кондиционера с конденсатора. См. раздел 7B, "Система отопления, вентиляции и кондиционирования".
  13. Снять радиатор в сборе вверх.
  14. Снять вспомогательный вентилятор системы охлаждения с конденсатора кондиционера.


  15. L7C11B08
    Показать иллюстрациюПеревод текста в иллюстрациях


  16. Снять конденсатор кондиционера с охладителя нагнетаемого воздуха. См. раздел 7B, "Система отопления, вентиляции и кондиционирования".
  17. Снять охладитель нагнетаемого воздуха с радиатора. См. Раздел 1B, Механическая система двигателя - 2.0 Дизель.

Процедура очистки

    Внимание! НИ В КОЕМ случае не распыляйте воду на горячий радиатор. Появляющийся пар может стать причиной травмы.

    Примечание: Пластины радиатора служат для необходимой передачи тепла. Не очищайте щеткой пластины. Из-за этого пластины могут повредиться и тепло будет передаваться хуже.

    Важно: Удалить насекомых, листья, грязь и прочий налет струей сжатого воздуха со стороны радиатора, обращенной к двигателю В некоторых случаях может понадобиться теплая вода и мягкое моющее средство.



L7C11B08
Показать иллюстрациюПеревод текста в иллюстрациях


Процедура установки

    Внимание! Не допускайте повреждения пластин радиатора, чтобы не нарушить работу системы охлаждения.

  1. Установить охладитель нагнетаемого воздуха на радиатор.
  2. Установите конденсатор кондиционера.
  3. Затянуть

    Затянуть крепежные болты охладителя нагнетаемого воздуха с моментом 8,5 Н•м (75,2 фунт-дюйма).
    Затянуть крепежные болты конденсатора кондиционера с моментом 9 Н•м (80 фунт-дюймов).


    L7C11D02
    Показать иллюстрациюПеревод текста в иллюстрациях


  4. Установить вспомогательный вентилятор системы охлаждения.
  5. Затянуть
    Затянуть крепежные болты масляного поддона до 4 Н•м (35 фунт-дюймов).



    L7C11D03
    Показать иллюстрациюПеревод текста в иллюстрациях


  6. Установите радиатор в сборе.
  7. Установить верхний кронштейн радиатора.
  8. Затянуть
    Затянуть болты верхнего кронштейна радиатора до 14 Н•м (10,3 фунт-фута).



L7C11B05
Показать иллюстрациюПеревод текста в иллюстрациях


Термостат

Процедура снятия

    Внимание! С целью предупреждения травм не снимайте заглушку расширительного бачка на горячем двигателе и радиаторе, поскольку теплота поддерживает давление в системе. Горячая жидкость и пар могут выходить под большим напором.

  1. Слейте охлаждающую жидкость. Следуйте пункту "Слив и заправка системы охлаждения" в этом разделе.
  2. Снять декоративную крышку. См. Раздел 1B, "Механическая система двигателя - 2.0 Дизель".


  3. C7A52D13
    Показать иллюстрациюПеревод текста в иллюстрациях


  4. Отсоедините верхний шланг радиатора от корпуса термостата.
  5. Отверните болт крепления насоса впрыска топлива к питающей трубке рампы.
  6. Снимите корпус термостата.
  7. Снять термостат с прокладкой.


C7A52D13
Показать иллюстрациюПеревод текста в иллюстрациях


Процедура установки

  1. Установите термостат с новой прокладкой.
  2. Установите корпус термостата.
  3. Заверните болт крепления топливопровода к общей топливной рампе.
  4. Затянуть

    Затянуть болты корпуса термостата с моментом 23 Н•м (17 фунт-футов).
    Затянуть крепежный болт топливопровода к общей топливной рампе с моментом 10 Н•м (88,5 фунт-дюйма).


C7A52B52
Показать иллюстрациюПеревод текста в иллюстрациях


Насос охлаждающей жидкости; Водяной насос

Процедура снятия

    Внимание! С целью предупреждения травм не снимайте заглушку расширительного бачка на горячем двигателе и радиаторе, поскольку теплота поддерживает давление в системе. Горячая жидкость и пар могут выходить под большим напором.

  1. Слейте охлаждающую жидкость. Следуйте пункту "Слив и заправка системы охлаждения" в этом разделе.
  2. Снять систему приводного ремня ГРМ. См. Раздел 1B, "Механическая система двигателя - 2.0 Дизель".


  3. C7A52B67
    Показать иллюстрациюПеревод текста в иллюстрациях


  4. Снять натяжной ролик приводного ремня ГРМ.
  5. Снимите звездочку насоса для впрыска топлива.
  6. Снимите заднюю крышку приводного ремня газораспределительного механизма.


  7. C7A52D14
    Показать иллюстрациюПеревод текста в иллюстрациях


  8. Снимите водяной насос с прокладкой.

Процедура проверки и очистки

  1. Проверьте корпус насоса охлаждающей жидкости на поломки и утечку.
  2. Проверьте подшипник насоса охлаждающей жидкости на люфт и чрезмерные шумы.
  3. Проверьте шкив насоса охлаждающей жидкости на чрезмерный износ. Если насос охлаждающей жидкости неисправен, замените насос охлаждающей жидкости целиком.
  4. Почистите сопрягаемые поверхности насоса охлаждающей жидкости и блока цилиндров.


C7A52D14
Показать иллюстрациюПеревод текста в иллюстрациях


Процедура установки

  1. Установите водяной насос с новой прокладкой.
  2. Затянуть
    Затяните стяжные болты водяного насоса до 11 Н•м (97,4 фунт-дюйма).



    C7A52B67
    Показать иллюстрациюПеревод текста в иллюстрациях


  3. Установить заднюю крышку приводного ремня ГРМ.
  4. Установить натяжной ролик приводного ремня ГРМ.
  5. Установите звездочку насоса для впрыска топлива.
  6. Затянуть

    Затянуть болт натяжного ролика приводного ремня ГРМ с моментом 52 Н•м (38,4 фунт-фута).
    Затянуть гайку звездочки топливного насоса высокого давления с моментом 70 Н•м (51,6 фунт-фута).
    Затянуть болты заднего кожуха приводного ремня ГРМ с моментом 11 Н•м (97,4 фунт-дюйма).

ОБЩЕЕ ОПИСАНИЕ И РАБОТА СИСТЕМЫ

Система охлаждения

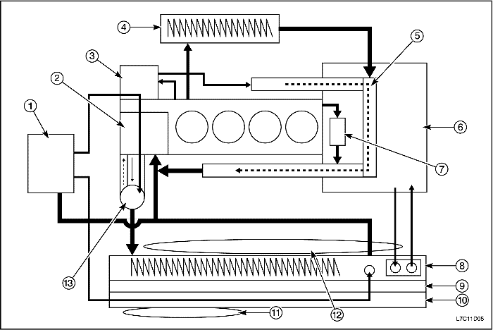
Функция системы охлаждения заключается в том, чтобы поддерживать эффективную рабочую температуру двигателя при любых оборотах двигателя и в любых условиях эксплуатации. Система охлаждения предназначена для отвода примерно одной трети тепла, вырабатываемого при сгорании топливовоздушной смеси. Когда двигатель холодный, поток охлаждающей жидкости не попадает в радиатор до тех пор, пока не откроется термостат. Это позволяет двигателю быстро нагреться.

L7C11D05
Показать иллюстрациюПеревод текста в иллюстрациях


  1. Расширительный бачок
  2. Водяной насос
  3. Масляный радиатор двигателя
  4. Теплообменник нагревателя
  5. Водяная трубка
  6. Автоматическая коробка передач с главной передачей в сборе
  7. Охладитель системы рециркуляции выхлопных газов
  8. Радиатор
  9. Охладитель нагнетаемого воздуха
  10. Конденсатор кондиционера
  11. Вспомогательный вентилятор системы охлаждения
  12. Основной вентилятор системы охлаждения
  13. Термостат

Насос охлаждающей жидкости; Водяной насос


C7A52D02
Показать иллюстрациюПеревод текста в иллюстрациях


Водяной насос является компонентом системы охлаждения двигателя и прокачивает охлаждающую жидкость, поступающую от каждого компонента контура охлаждения.
Этот водяной насос включает в себя уплотнение, подшипник, шкив и корпус и приводится от коленчатого вала при помощи обратной стороны приводного ремня ГРМ для ослабления шума от шкива водяного насоса.
Водяной насос снабжен чашкой крышки спускного отверстия для предотвращения попадания охлаждающей жидкости на клиентов.
Водяной насос имеет крыльчатку не открытого типа, а пластиковую крыльчатку закрытого типа для повышения эффективности охлаждения.
  1. Шкив водяного насоса
  2. Пробка сливного отверстия стакана
  3. Корпус
  4. Крыльчатка

Термостат


C7A52D03
Показать иллюстрациюПеревод текста в иллюстрациях


Термостат регулирует поток охлаждающей жидкости и собирается на впускном коллекторе. В зависимости от температуры охлаждающей жидкости восковой шарик термостата механически растягивает или сжимает ходовую пружину, пропуская поток охлаждающей жидкости.
Термостат начинает открываться при температуре 80°С (176°F) и полностью открывается при 95°С (203°F). Термостат закрывается при температуре 75°С (167°F).
  1. Седло
  2. Колпачок
  3. Качающийся клапан
  4. Поршень
  5. Упорное кольцо
  6. Резиновый клапан
  7. Элемент в сборе
  8. Главная пружина
  9. Перепускной вал
  10. Рама
  11. Перепускная пружина
  12. Перепускной клапан
  13. Упорное кольцо

Радиатор


L7C11D06
Показать иллюстрациюПеревод текста в иллюстрациях


Радиатор является теплообменником. Он состоит из сердцевины и двух бачков. Алюминиевая сердцевина представляет собой поперечно-точную конструкцию из трубок и пластин, которая тянется от впускного бачка до выпускного бачка. Пластины располагаются вокруг внешней части трубок для улучшения теплообмена с атмосферой.
Впускной и выпускной бачки отливаются из теплостойкой, армированной полиамидным волокном пластмассы. Термостойкая резиновая прокладка служит уплотнением между отбортованной кромкой бачка и алюминиевой сердцевиной. Бачки фиксируются на сердцевине выступами с зажимами. Выступы являются частью алюминиевого коллектора на каждом конце сердцевины.
Радиатор также имеет сливную пробку, которая располагается в нижней части левого бачка. В узел сливной пробки входит сама сливная пробка и уплотнение сливной пробки.
Радиатор отводит тепло из охлаждающей жидкости, проходящей через него. Пластины на сердцевине передают тепло от охлаждающей жидкости, проходящей через трубки. Проходя между пластинами, воздух поглощает тепло и остужает охлаждающую жидкость.

Расширительный бачок


L7C11D07
Показать иллюстрациюПеревод текста в иллюстрациях


Расширительный бачок представляет собой пластиковый бачок с резьбовой герметичной крышкой. Бачок монтируется в точке, расположенной выше всех остальных каналов охлаждающей жидкости. Расширительный бачок обеспечивает воздушное пространство в системе охлаждения, которое позволяет охлаждающей жидкости расширяться и сжиматься. Расширительный бачок служит местом для заливки охлаждающей жидкости и центром для удаления воздуха.
При использовании автомобиля охлаждающая жидкость нагревается и расширяется. Увеличивающийся объем охлаждающей жидкости перетекает в расширительный бачок. По мере циркуляции охлаждающей жидкости допускается выход всего воздуха пузырьками. Охлаждающая жидкость без воздушных пузырьков поглощает тепло гораздо лучше, чем охлаждающая жидкость с пузырьками.

Вентилятор системы охлаждения

Имеется два вентилятора системы охлаждения, которые установлены в моторном отсеке спереди и позади радиатора. Вентилятор охлаждения двигателя приводится в действие электричеством. Вентилятор системы охлаждения втягивает воздух через радиатор, чтобы улучшить передачу тепла от охлаждающей жидкости в атмосферу. Вращаясь, лопатки вентилятора увеличивают ток воздуха через сердцевину радиатора и через конденсатор на автомобилях, оснащенных кондиционером. Это позволяет ускорить охлаждение на холостых оборотах или при низких скоростях.

L7C11D01
Показать иллюстрациюПеревод текста в иллюстрациях



L7C11D02
Показать иллюстрациюПеревод текста в иллюстрациях




На предыдущую страницуНа следующую страницу
Главная страница сайта